Bouwtekening

Een goede bouwtekening is essentieel om uw bouwproject te laten slagen. Heisen Bouw verzorgt een voorlopig ontwerp, vergunning- en/of uitvoeringstekeningen. Gaat het om het realiseren van een aanbouw, een complexe renovatie of nieuwbouw? Heisen Bouw denkt vanaf het begin met u mee en helpt u verder door het verzorgen van gedegen bouwkundig tekenwerk.

Heisen Bouw werkt met Autocad en Revit, het pakket zorgt voor duidelijke bouwkundige 2D of 3D tekening.

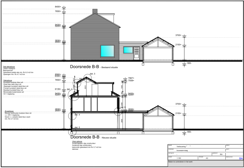
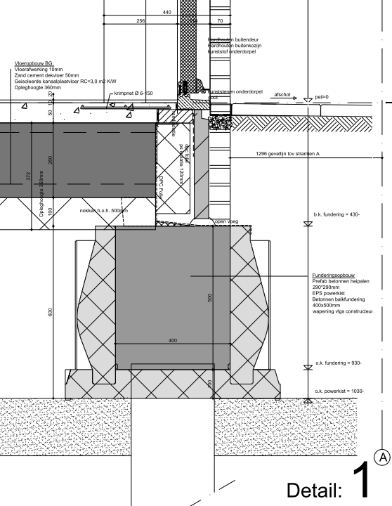
Onderaan deze pagina's vindt u enkele impressies van door ons gemaakte bouwtekeningen. Dit geeft een beeld van wat u van ons kunt verwachten.

Bouwvraag?

Heeft u een bouwvraag? Neemt u vrijblijvend contact op en we bespreken uw wensen.